Not Quite Right?
Get A FREE Modification Quote
Like this plan, but would like to make some of your own changes? Use our modification request form to get a free quote for making the changes that will serve your needs.
STYLE:    Coastal
PLAN TYPE:   Single Family
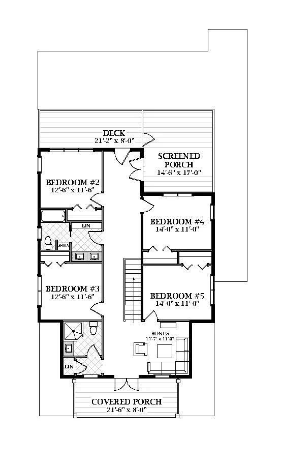
SQFT:   2,932
BEDROOMS:  5
BATHROOMS:   4-1/2
LEVELS/STORIES:  2
GARAGE STALLS:  2
WIDTH:   43’-0”
DEPTH:    78’-3”
HEIGHT:    42’-0”
CEILING HEIGHT MAIN:  10’
CEILING HEIGHT UPPER:   9’
STYLE:    Coastal
PLAN TYPE:   Single Family
SQFT:   2,932
BEDROOMS:  5
BATHROOMS:   4-1/2
LEVELS/STORIES:  2
GARAGE STALLS:  2
WIDTH:   43’-0”
DEPTH:    78’-3”
HEIGHT:    42’-0”
CEILING HEIGHT MAIN:  10’
CEILING HEIGHT UPPER:   9’
Get A FREE Modification Quote
Like this plan, but would like to make some of your own changes? Use our modification request form to get a free quote for making the changes that will serve your needs.